Soho/Covent Garden Balcony Apartment - Long Stays, Workers relocating, Students | Apartment in London, United Kingdom

2 Bedroom Apartment with TV, Balcony and Bedding
AVAILABLE for LONG LETS. Our lowest rate starts at £850 per week (based on number of occupants and bills included/excluded). Please give us your dates, and ask about offers that fit your needs as a MINOR rate or date adjustment can sometimes be all that is required to make the rental work for all sides. We are open to offers, can help with Terms/Cancellations to Flights etc and recommend Travel Insurance covers you.
Welcome to the very heart of London! Overlooking Soho and Covent Garden, this modern apartment complex offers wonderful panoramic views of the capital, and is within walking distance of all the main tourist attractions. Nearby are Leicester Square, Trafalgar Square, Piccadilly Circus, The British Museum, No 10 Downing Street, Big Ben and the Houses of Parliament, Buckingham Palace, St Paul's Cathedral, and the Tower of London.
Right outside your door you'll find the main London shopping district, restaurants, and theater districts, plus cinemas, museums, art galleries, nightclubs, parks, and 24-hour shops... You'll also find excellent transport links to anywhere you need to go.
Superb Location! Walk to everything!: Our great location attracts both holiday-makers and business clients (Deutschebank, Ernst & Young, Pricewaterhouse Coopers, The Royal Opera House, Chicago The Musical, Borders Books-Music-Video Stores) for both short and long stays.
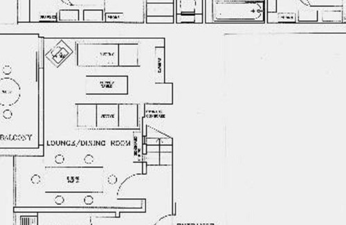
Apartment unit has a fully-equipped kitchen, living/dining room, balcony, full bathroom and 2 toilets and can be priced for longer stays as a 1 Bedroom with the option to have a 2nd Bedroom (one room can be 2x Single Beds or 1x Super King size Bed). See the Floorplan picture.
N E W S ! Tottenham Court Road Underground Station right outside has been rebuilt and modernised to relieve congestion.
* The NEW ticket hall is 6 times bigger with step free access and improved interchange.
* The NEW "Elizabeth Line" (aka Crossrail) provides 24 trains an hour, with tube journeys from Heathrow Airport direct to the apartment in 30 minutes - half the previous time!
* The NEW "St Giles Square" plaza created outside Centre Point has many al fresco restaurants now open on the doorstep.
* Streetview on MAPS is out of date if it shows construction (finished 2021), so please ignore.
* This flat benefits from SOUND-PROOFING and HEAT-RETAINING additional INSULATION with sliding SECONDARY GLAZING panels in all rooms
Please Note: This property is set up to specialise in LONG-LET RENTALS (ie not nightly / weekly rentals) and offering very generous discounts for extended stays (eg 2, 3 or 5 year rentals)
Soho/Covent Garden Balcony Apartment - Long Stays, Workers relocating, Students is located in Soho. Soho/Covent Garden Balcony Apartment - Long Stays, Workers relocating, Students provides accommodation, featuring Kitchen, Laundry, TV, among other amenities. This Apartment features Kitchen, Laundry, TV, to make your stay a comfortable one.
Soho/Covent Garden Balcony Apartment - Long Stays, Workers relocating, Students has 2 Bedrooms , 2 Bathrooms, and max occupancy of 4 people. The minimum rental for this property is 1 nights, but this can change depending on the season you plan on staying. Previous guests have given good rated it, and VRBO labeled it a top-rated Apartment because of the excellent services rendered by the owner or manager of this Apartment, and has consistently provided great experiences for their guests. Most families or guests that use it recommend it to their friends and some of them are repeat guests. Apartment has a friendly neighborhood, and the Soho has interesting places to visit. If you want to learn more about the Apartment in Soho, such as places to visit and things to do nearby, you can check below to learn more.
Amenities
Facility Overview
-
Heating
-
Hair dryer
-
Shampoo
-
Soap
-
Toilet paper
-
Towels provided
-
Bed sheets provided
-
Living room
-
Coffee/tea maker
-
Cookware/dishes/utensils
-
Dishwasher
-
Microwave
-
Oven
-
Refrigerator
-
Stovetop
-
Toaster
-
Washing machine and dryer
-
Car not required
-
Onsite parking
-
No pets allowed
-
Elevator
-
Smoke-free property
-
Fitness facilities nearby
-
Swimming nearby
-
Books
-
DVD player
-
Stereo
-
TV with cable/satellite service
-
In the city center
-
Near a hospital
-
Near a zoo
-
Housekeeping (on request)
-
Iron/ironing board
-
Phone
-
WiFi available
-
Balcony
-
Barbecue grill
-
Fire extinguisher
-
Smoke detector
Policies
Reviews
FAQ's
Is this Soho apartment pet-friendly for guests?
No, pets are not allowed at this property. Check the guest reviews to learn what guests had to share.
Does the Soho apartment have a swimming pool?
No, this Soho apartment does not have a swimming pool. Check the Facility Overview section for details about the pool and other available facilities.
How much does it cost per night to stay in Soho apartment?
Best-rates for the Soho apartment starts from $186 per night with includes Laundry, TV, Wheelchair Accessible, Balcony/Terrace, Bedding/Linens, Child Friendly, Kitchen with all other facilities. Casai.nz matches every traveler with their perfect accommodation, whether you are traveling with a group, friends, family, or pets.
Is Soho apartment a family-friendly place to stay?
Based on the information we have received from the owner or our partner, this is considered to be a family-friendly property. Families have rated this apartment Good or guests have recommended them suitable for families. As reported by the owner or manager, the apartment has specified that children are welcome. Please see details about suitability for your family or inquire with the property to learn more.
Is the Soho apartment wheelchair accessible or offer services for disabled guests?
Based on the information received from our partner, the Soho apartment is wheelchair accessible. Likewise, there is an elevator specified as being available at the property. Specific accessibility details may be addressed in the property details section of this page.
What is the minimum night stay policy for the Soho apartment?
Based on the information reported by the owner or manager, the Soho apartment indicates 1 day stay policy at this apartment. Guests are cautioned that the minimum stay policy may differ based on seasonality or availability and may be at the discretion of the owner or manager.
What cancellation policy is in place for Soho apartment?
Based on the information reported by the owner or manager, details for the cancellation policy for the Soho apartment are as follows: Cancellation policy Guests are cautioned that the cancellation policy may differ based on seasonality, availability, or current travel restrictions. Guests should also be aware that this policy may be subject to change and should be confirmed prior to booking. More details may be available on this page in the property description. However, early check-in or late check-out can sometimes be negotiated between the guest and the owner or the manager of this property.