Black Bear Downtown - Magnificent Walk to Town log home bordering Mill Creek just a block from Main Street | House in Highlands, NC

4 Bedroom House with Laundry, Air Conditioner and Bedding
Black Bear Downtown
THIS HOME IS NO LONGER ACCEPTING RESERVATIONS AFTER APRIL 15TH 2023
Only adults (25 years old and older) may reserve this property and an adult must occupy the property at all times.
No need to walk to town ... you're in town! One of a kind, magnificent, handcrafted log home on Mill Creek one block from the center of downtown Highlands.
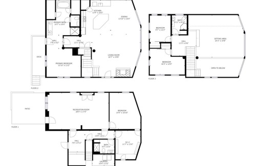
Where else can you be "in town" yet nestled in the trees next to a rushing creek? This beautiful home has the rustic charm of a log home with all of the modern amenities guests have come to expect in luxury mountain retreats. This three level home provides maximum privacy for family gatherings, friends vacationing together or an escape getaway for two. There is a full bath on every level.
As soon as you pull up, you'll notice how guest-friendly this home is. A circular drive (large enough for a motor coach) makes parking a breeze and a ramp to the front door ensures that the home is accessible for everyone. The main floor features an open floor plan with floor to ceiling windows for people watching or lower the privacy shades to create a cozy space for entertaining and relaxing in front of the stone gas log fireplace. The main level bedroom suite with a king bed and master bath invites you to relax in the claw foot Jacuzzi tub or on the private deck overlooking beautiful Mill Creek. The cook in your crew will love creating memorable meals in the gourmet kitchen with a gas range and plenty of seating either at the massive island or the adjacent dining room table.
The lower level features a large seating area for movie nights, a table that seats six and beautiful views including a walk out to a patio with a gas fire pit overlooking Mill Creek with all of the relaxing sounds of the rushing water so you can enjoy nature at its finest. There is also a queen bed, bunk beds and laundry room.
Upstairs in the "Gathering Place" awaits an expansive great room complete with a bar and a huge wall of fixed glass windows overlooking shops and restaurants where you can relax in comfort and watch all of the activity, or the big screen TV. There are two more bedrooms, each with a queen bed and views of Mill Creek. You'll have no problem drifting off to sleep to the sounds of rushing water.
You can't beat this location for convenience and mountain ambiance. Referred to by many as the Aspen of the east due to its many fine dining restaurants and world class shopping, you're just a short stroll from everything that makes Highlands a unique and memorable vacation destination. Call our team at Rent In Highlands today to plan your next memorable trip to Highlands at Black Bear Downtown.
What our guests are saying...
"The Best So Far! Well on our 10th consecutive year renting homes in and around Highlands we have finally found our forever rental. For the last 10 years we have visited Highlands on this same weekend to celebrate birthdays and gather with family. Six adults and four growing kids make the trek from various parts of SC to enjoy all Highlands has to offer. We have stayed off the grid, close to town and in town, but, if the owners will have us, we will never stay anywhere again but here! This house is located a block from Main Street and just down from the Highlands Park. It sits on the banks of the creek and has an outdoor patio thats perfect for a cocktail or hot chocolate. Theres a bunk room for the kids and a bedroom for each couple with separate gathering areas so the kids can be kids and the adults can have a space as well. It really is a great spot! Cant wait to get back." - Jon
Cancellation Policy
In the event of a cancellation by tenant, a reservation canceled between 0-45 days prior to arrival is not eligible to receive a refund. If more than 45 days notice is given, tenant shall receive a refund of all payments made by tenant, less an administrative fee of 10% of the Total Cost of the Reservation.
Non refundable pet fee. All Pets must be specifically approved by agent.
Indoor Gas Fireplace
Outdoor Gas Firepit
Gas Grill
4 Smart TV's located in the living room, upstairs loft, master bedroom & downstairs living space
Gas cooktop/electric oven
Black Bear Downtown - Magnificent Walk to Town log home bordering Mill Creek just a block from Main Street is located in Highlands. Black Bear Downtown - Magnificent Walk to Town log home bordering Mill Creek just a block from Main Street provides accommodation, featuring Air Conditioner, Pet Friendly, Wheelchair Accessible, among other amenities. This House features Air Conditioner, Pet Friendly, Wheelchair Accessible, to make your stay a comfortable one.
Black Bear Downtown - Magnificent Walk to Town log home bordering Mill Creek just a block from Main Street has 4 Bedrooms , 3 Bathrooms, and max occupancy of 10 people. The minimum rental for this property is 1 nights, but this can change depending on the season you plan on staying. Previous guests have given good rated it, and VRBO labeled it a top-rated House because of the excellent services rendered by the owner or manager of this House, and has consistently provided great experiences for their guests. Most families or guests that use it recommend it to their friends and some of them are repeat guests. House has a friendly neighborhood, and the Highlands has interesting places to visit. If you want to learn more about the House in Highlands, such as places to visit and things to do nearby, you can check below to learn more.
Amenities
Facility Overview
-
Air conditioning
-
Heating
-
3 bathrooms
-
Hair dryer
-
Towels provided
-
Dining table
-
4 bedrooms
-
Bed sheets provided
-
Fireplace
-
Living room
-
Coffee/tea maker
-
Cookware/dishes/utensils
-
Dishwasher
-
Microwave
-
Oven
-
Refrigerator
-
Stovetop
-
Toaster
-
Near laundromat
-
Washing machine and dryer
-
Pet friendly
-
If you have requests for specific accessibility needs, please contact the property using the information on the reservation confirmation received after booking.
-
Smoke-free property
-
Wheelchair accessible
-
TV with cable/satellite service
-
Sleeps 10
-
English
-
In the city center
-
In the mountains
-
Iron/ironing board
-
WiFi available
-
Barbecue grill
-
Firepit
-
Furnished patio
-
Carbon monoxide detector
-
Fire extinguisher
-
First aid kit
-
Smoke detector
-
Spa tub
Policies
Reviews
FAQ's
Is this Highlands house pet-friendly for guests?
Yes, pets are allowed at this property. Check the guest reviews to learn what guests had to share.
Does the Highlands house have a swimming pool?
No, this Highlands house does not have a swimming pool. Check the Facility Overview section for details about the pool and other available facilities.
How much does it cost per night to stay in Highlands house?
Best-rates for the Highlands house starts from $645 per night with includes Kitchen, Laundry, Air Conditioner, Pet Friendly, Wheelchair Accessible, Bedding/Linens with all other facilities. Casai.nz matches every traveler with their perfect accommodation, whether you are traveling with a group, friends, family, or pets.
Is Highlands house a family-friendly place to stay?
Based on the information we have received from the owner or our partner, this is not considered to be a family-friendly property. As reported by the owner or manager, the house has not specified that children are welcome. Please see details about suitability for your family or inquire with the property to learn more.
Is the Highlands house wheelchair accessible or offer services for disabled guests?
Based on the information received from our partner, the Highlands house is wheelchair accessible. Likewise, there is an elevator specified as being available at the property. Specific accessibility details may be addressed in the property details section of this page.
What is the minimum night stay policy for the Highlands house?
Based on the information reported by the owner or manager, the Highlands house indicates 1 day stay policy at this house. Guests are cautioned that the minimum stay policy may differ based on seasonality or availability and may be at the discretion of the owner or manager.
What cancellation policy is in place for Highlands house?
Based on the information reported by the owner or manager, details for the cancellation policy for the Highlands house are as follows: Cancellation policy Guests are cautioned that the cancellation policy may differ based on seasonality, availability, or current travel restrictions. Guests should also be aware that this policy may be subject to change and should be confirmed prior to booking. More details may be available on this page in the property description. However, early check-in or late check-out can sometimes be negotiated between the guest and the owner or the manager of this property.